Doppelhaushälfte in ruhiger Anliegerstraße

Objektdetails
Ort Hamburg – Lemsahl
Zimmer 5
Wohnfläche 141 m²
Grundstück 360 m²
Online-Nr. 1317
Carports 1
Baujahr 2010
Beschreibung

EIN GROSSZÜGIGES HAUS IN BEVORZUGTER WOHNLAGE VON LEMSAHL.

Die Doppelhaushälfte wurde 2010 erbaut. Der besondere Charakter wird durch die lichtdurchfluteten, großzügigen Räume und die hochwertige Ausstattung geprägt. Im Obergeschoss befinden sich drei großzügige Schlafzimmer und ein Vollbad.

Hervorzuheben ist

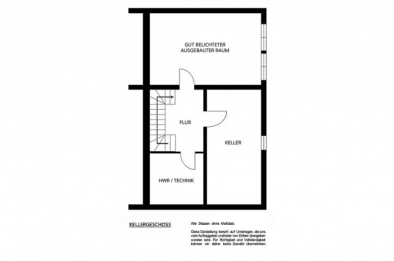
Sehr schöne Raumaufteilung. Erdgeschoss mit hellem Entrée, großer Küche und Essbereich sowie großzügigem Wohnbereich. Im Obergeschoss ohne Schrägen befinden sich 3 Zimmer sowie ein Vollbad mit zusätzlicher Dusche. Küche in cremefarben mit allen Einbauten, E-Geräte NEFF inkl. Kühlschrank und Geschirrspülmaschine sowie Edelstahl-Abzugshaube. Sandsteinfarbene Fliesen sowie Treppenanlage. Gas-Brennwert Heizungsanlage mit Fußbodenheizung. Weisse Kunststoffenster mit elektrischen Rolläden im gesamten Haus, Zier-Fensterläden. Vollkeller mit ausgebautem sehr gut belichtetem Raum (26,5 m²) ebenfalls mit mit Fußbodenheizung.

Die Gesamtwohnfläche des Hauses beträgt etwa 141 m²
zzgl. gut belichtetem Raum im Vollkeller etwa 26,5 m²
zzgl. weiterer Räumlichkeiten im Vollkeller, wie Abstellraum und Heizungsraum.

Carport für einen PKW seitlich vor dem Haus.
Beheizung und Warmwasserversorgung über Gas-Brennwert Heizungsanlage von 2010. Fußbodenheizung.

Energieinformationen

Beheizung und Warmwasserversorgung über Gasheizungsanlage. Bedarfsausweis: Endenergiebedarf: 71,8 kWh/(m²·a); Wesentlicher Energieträger: Gas; Baujahr Gebäude 2010; Baujahr Wärmeerzeuger: 2010; Energieeffizienzklasse: B.

Grundstück

Das etwa 360 m² große sonnige Grundstück ist Richtung Westen ausgerichtet. Vorgarten mit hübscher Natursteinmauer, gepflasterte Zuwegungen und breite Terrassenanlage.

Lage

Das Objekt befindet sich in Lemsahl, einer bevorzugten Hamburger Wohnlage, deren Charakter durch Wälder, Felder sowie Einfamilienhäuser und Villen auf großzügigen Grundstücken geprägt wird. Das Haus liegt in einer kleinen Anliegerstraße, absolut ruhig gelegen im 30 km/h Bereich. In der Nähe der Lemsahler Ortkern, der Alsterlauf mit ausgedehnten Naturflächen und Alsterwanderweg sowie der Golfclub am Treudelberg und das Alstertal - Einkaufszentrum (AEZ). Eine Grundschule befindet sich vor Ort, weiterführende Schulen in Poppenbüttel und Ohlstedt.

Hinweis

Alle Objekteinzelheiten erfolgen nach Angaben des Grundeigentümers und / oder von Dritten. Eine Haftung für die Vollständigkeit und Richtigkeit können wir nicht übernehmen. Es gelten unsere Allgemeinen Geschäftsbedingungen.

Objektunterlagen anfordern
Weitere Bilder
Diese Webseite verwendet Cookies

Wir bitten um Verständnis, dass diese Webseite ohne Ihre Einwilligung unter Umständen nicht im vollen Umfang genutzt werden kann.

Cookie-Erklärung Über Cookies

Notwendige Cookies helfen dabei, eine Webseite nutzbar zu machen, indem sie Grundfunktionen wie Seitennavigation und Zugriff auf sichere Bereiche der Webseite ermöglichen. Die Webseite kann ohne diese Cookies nicht richtig funktionieren.

NameAnbieterZweckAblaufTyp
CookieConsenttudsen.deSpeichert den Zustimmungsstatus des Benutzers für Cookies auf der aktuellen Domäne.1 JahrHTTP
PHPSESSIDtudsen.deBehält die Zustände des Benutzers bei allen Seitenanfragen bei.SessionHTTP

Statistik-Cookies helfen Webseiten-Besitzern zu verstehen, wie Besucher mit Webseiten interagieren, indem Informationen anonym gesammelt und gemeldet werden.

NameAnbieterZweckAblaufTyp
_gatudsen.deIdentifiziert einen User. Wird von Google Analytics verwendet.2 JahreHTTP
_gidtudsen.deIdentifiziert einen User. Wird von Google Analytics verwendet.24 StundenHTTP
_gattudsen.deVerwendet, um die Geschwindigkeit der Anfragen an den Server zu drosseln. Wird von Google Analytics verwendet.1 MinuteHTTP

Marketing-Cookies werden verwendet, um Besuchern auf Webseiten zu folgen. Die Absicht ist, Anzeigen zu zeigen, die relevant und ansprechend für den einzelnen Benutzer sind und daher wertvoller für Publisher und werbetreibende Drittparteien sind.

NameAnbieterZweckAblaufTyp
NIDgoogle.comRegistriert eine eindeutige ID, die das Gerät eines wiederkehrenden Benutzers identifiziert. Die ID wird für gezielte Werbung genutzt.6 MonateHTTP
frfacebook.comErmöglicht das Publikum für Werbekampagnen auf Facebook zu messen, zu optimieren und aufzubauen.3 MonateHTTP
_fbpfacebook.comCookie wird von Facebook platziert um Besuche über Websites hinweg zu speichern und zu verfolgen.3 MonateHTTP

Cookies sind kleine Textdateien, die von Webseiten verwendet werden, um die Benutzererfahrung effizienter zu gestalten, bestimmte Funktionen bereitzustellen oder um bestimmte Auswertungen zu ermöglichen.

Laut Gesetz können wir Cookies auf Ihrem Gerät speichern, wenn diese für den Betrieb dieser Seite unbedingt notwendig sind. Für alle anderen Cookie-Typen benötigen wir Ihre Erlaubnis.

Diese Seite verwendet unterschiedliche Cookie-Typen. Einige Cookies werden von Drittparteien platziert, die auf unseren Seiten erscheinen.